Статус mixed-use проекта добавляет объекту дополнительную ценность, так как жильцы пользуются теми же преимуществами, что и гости отельной части комплекса. Это гарантирует высокий уровень обслуживания территории, наличие работающих коммерческих помещений, ресторанов и кафе прямо в доме. Такая модель снижает риски простоя инфраструктуры и обеспечивает постоянную активность на территории, что важно для безопасности и комфорта проживания. Покупка квартиры в Dreamland Oasis — это вход в среду, где жилые и сервисные функции гармонично дополняют друг друга.
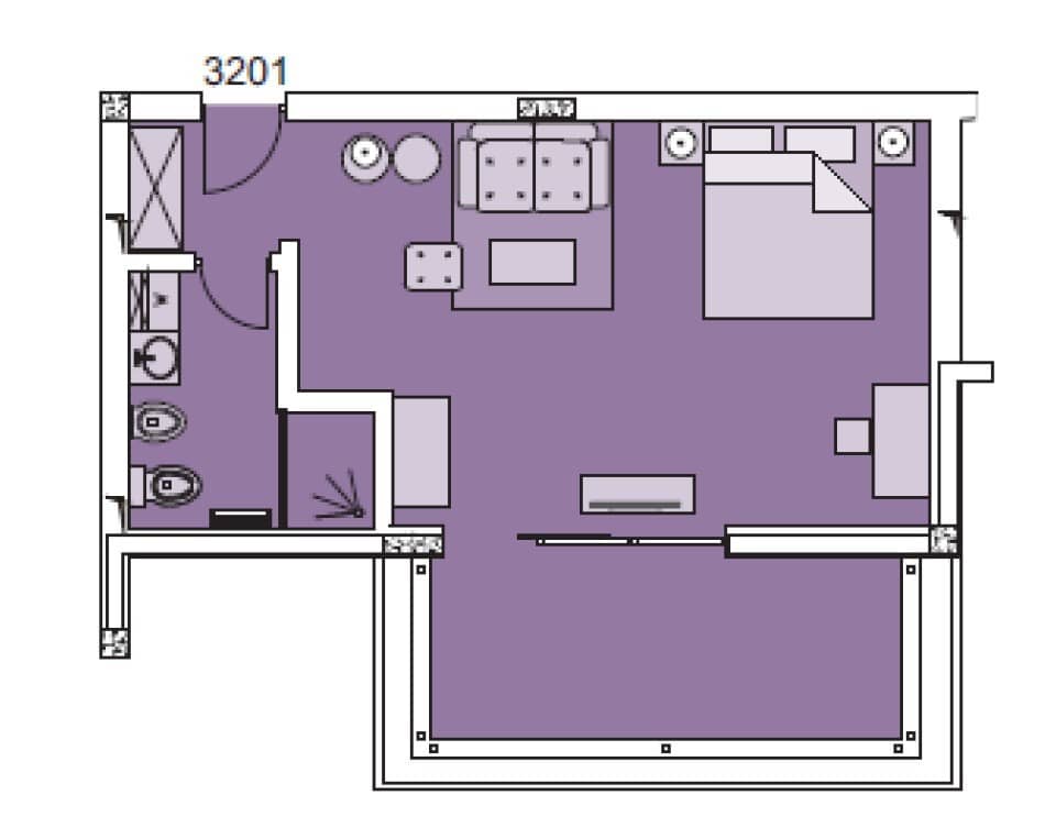
Апартаменты площадью 47.7 м² обладают высокой универсальностью, подходя как для личного сезонного проживания, так и для сдачи в аренду. Наличие одной спальни делает объект привлекательным для пар с детьми или небольших компаний друзей, приезжающих в Батуми на отдых. В Dreamland Oasis такой метраж позволяет комфортно пользоваться всеми преимуществами инфраструктуры, возвращаясь в просторное жилье после дня на пляже. Это оптимальный выбор для тех, кто ищет функциональность без компромиссов в качестве отдыха.
Расположение квартиры на 3 этаже обеспечивает максимальное удобство доступа и мобильность для жильцов. Это особенно важно для семей с маленькими детьми или пожилыми людьми, для которых быстрый выход на территорию комплекса и к морю является приоритетом. Нижние этажи в Dreamland Oasis часто имеют прямой визуальный контакт с озеленением, создавая ощущение жизни в саду. Такой выбор этажа упрощает логистику перемещения вещей и снижает зависимость от работы лифтов в часы пик.
Стоимость квартиры $153 813 обоснована доступом к масштабной инфраструктуре курортного типа, включая аквапарк и бассейны. Покупатель платит не только за квадратные метры, но и за готовую среду отдыха, которая в других проектах требует отдельных вложений. В пересчете на стоимость отдыха такая цена становится конкурентной по сравнению с регулярным проживанием в отелях аналогичного уровня. Инфраструктурная насыщенность Dreamland Oasis поддерживает ценность актива на долгосрочную перспективу.
Покупка недвижимости в Dreamland Oasis — это вложение в готовый курортный актив с понятной моделью дохода. Сочетание локации в Чакви, первой линии и развитой инфраструктуры делает проект устойчивым к рыночным колебаниям. Квартира становится инструментом для получения пассивного дохода или местом для качественного отдыха владельцев. Чтобы рассмотреть доступные варианты и условия оплаты, стоит оставить заявку на консультацию.



