Horizon Grand Residence расположен в центральной части Батуми на первой береговой линии Чёрного моря, что определяет его статус как объекта премиального сегмента. Проект предлагает квартиры с панорамными видами на морское побережье и городскую панораму, сочетая дефицитную локацию с высоким уровнем комфорта. Комплекс ориентирован на покупателей, которые ценят прямой доступ к набережной и инфраструктуре курортной столицы, а также готовность жилья к использованию без дополнительных вложений. Архитектурное решение обеспечивает максимальную освещённость и видовые характеристики из каждого жилого помещения.
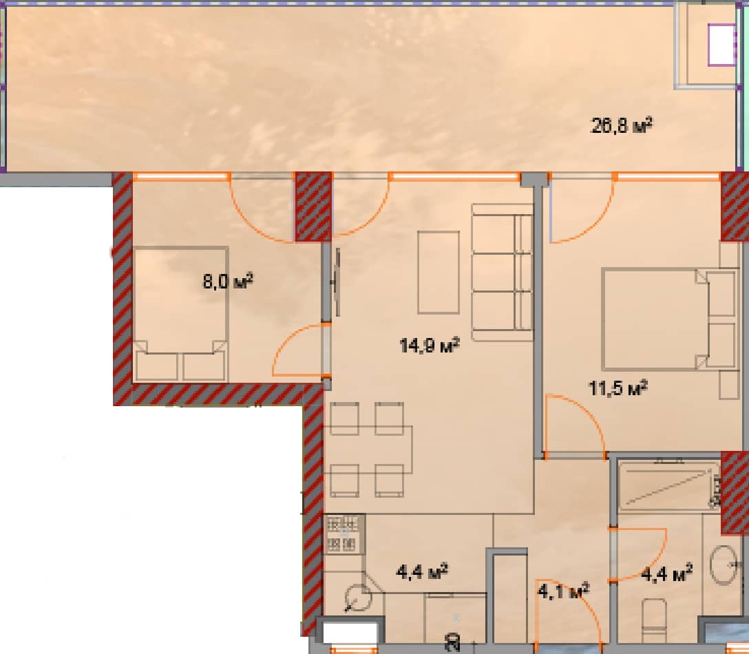
Квартира площадью 76.1 м² предлагает баланс между компактностью и простором, что делает её подходящей для пар или небольших семей, планирующих проживание у моря. Такой метраж позволяет выделить функциональные зоны для отдыха и повседневных задач, обеспечивая комфорт в условиях курортного ритма. Полная комплектация мебелью и техникой исключает необходимость закупки оборудования, сокращая время подготовки жилья к использованию для постоянного или сезонного пребывания.
Уровень 19 этажа добавляет квартире статусную ценность за счёт уникальных видовых характеристик и повышенной приватности. Верхние этажи в комплексе на первой линии моря традиционно пользуются высоким интересом со стороны покупателей премиального сегмента. Такое расположение поддерживает ликвидность объекта на вторичном рынке, сохраняя устойчивость спроса благодаря сочетанию локации, высоты и качества внутренней комплектации.
Цена $92 462 объясняется совокупностью параметров квартиры и характеристик комплекса, включая площадь, уровень этажа и видовые преимущества. Стоимость учитывает готовность жилья к использованию, наличие техники и мебели, а также расположение в зоне с развитой инфраструктурой. Такое сочетание факторов формирует рациональное соотношение цены и качества для недвижимости премиального класса в центре Батуми, обеспечивая предсказуемость ценности объекта.
Первая береговая линия в центре Батуми представляет собой ограниченный ресурс, что усиливает ценность объектов Horizon Grand Residence на рынке. Полная комплектация и премиальные характеристики отделки дополняют преимущества локации, формируя рациональное предложение в своём сегменте. Для получения информации о комплексе рекомендуется обратиться к специалистам по недвижимости.


