ЖК «Панорама» расположен в сформированном районе Тамари всего в сорока метрах от береговой линии Батуми, что обеспечивает прямой доступ к морскому побережью без необходимости пересекать оживлённые трассы. Проект от Tower Group предлагает премиальные апартаменты в двух сорокаэтажных башнях, создавая редкое сочетание курортной локации и развитой городской среды. Такое позиционирование формирует устойчивый спрос как у постоянных резидентов, так и у участников арендного рынка, ориентированных на краткосрочную сдачу. Выбор данного объекта гарантирует баланс между тишиной для жизни и доступностью туристической инфраструктуры.
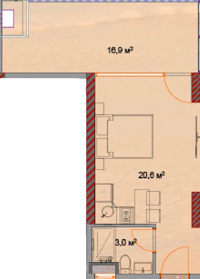
Метраж 39.3 м² позволяет создать универсальное пространство, удобное как для краткосрочной сдачи, так и для временного проживания специалистов в Батуми. Отсутствие лишних коридоров повышает полезную площадь квартиры, что ценится при выборе жилья в первой линии с ограниченными габаритами. Подобные объекты легко адаптируются под современные стандарты меблировки и быстро находят арендаторов благодаря доступному формату. Инвесторы получают ликвидный актив с низкой стоимостью обслуживания.
Расположение на 33 этаже открывает панорамные виды на море и силуэт прибрежных кварталов, где архитектура стеклянных фасадов раскрывается полностью. Верхние ярусы обеспечивают максимальную приватность за счёт удаления от уличного трафика и повышенного уровня естественного освещения квартир. Подобные позиции востребованы у покупателей, ориентирующихся на статусный формат и долгосрочную перспективу капитализации. Видовые характеристики укрепляют инвестиционную привлекательность актива.
Значение $110 040 включает в себя премиальные видовые характеристики, которые редки для массового сегмента новостроек курортного города с панорамным остеклением. Стоимость формируется под влиянием дефицита участков на первой береговой линии и подтверждения сроков сдачи комплекса застройщиком. Подобное ценообразование защищает инвестиции от волатильности и поддерживает ликвидность на вторичном рынке в долгосрочной перспективе.
Интеграция жилья в сформированный район Батуми обеспечивает стабильный интерес со стороны инвесторов и постоянных резидентов. ЖК «Панорама» демонстрирует логику устойчивого развития, где каждая характеристика объекта работает на долгосрочную окупаемость. Запрос экспертной оценки поможет выявить наиболее подходящие варианты метража и этажа.


