Комплекс расположен в центральной части Батуми по адресу Пиросмани, 10, в районе Аллеи Героев, который удерживает спрос за счёт смешанного трафика и развитой инфраструктуры. Локация обеспечивает пешую доступность к морю, расстояние до которого составляет около 435 метров, а также близость к торговым центрам и деловым объектам. Это делает проект устойчивым активом, востребованным как для сезонной аренды, так и для постоянного проживания в городском ритме.
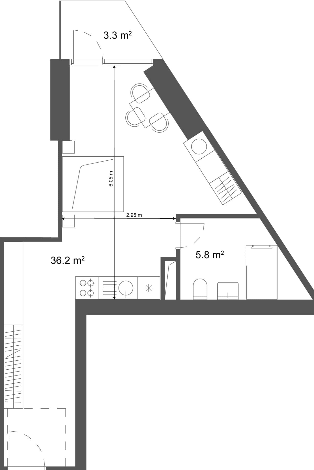
Площадь около 39.5 м² обеспечивает доступ к инвестиционно-премиальному сегменту с минимальным бюджетом, сохраняя все преимущества брендированной резиденции. Небольшой метраж упрощает поддержание чистоты и порядка, что критически важно при частой смене гостей в гостиничной модели управления. Это универсальный формат для тех, кто рассматривает недвижимость как инструмент пассивного дохода без необходимости постоянного личного присутствия.
Расположение квартиры на 34 этаже открывает панорамные виды на Батуми, море и горные хребты, что существенно повышает ценность объекта. Верхние уровни в Ramada Residences обеспечивают максимальную приватность и ощущение пространства, отделяя жильцов от городской суеты. Это премиальное позиционирование, которое позволяет устанавливать более высокую ставку аренды и привлекает требовательных гостей.
Стоимость квартиры $167 963 обусловлена параметрами объекта и включением в инфраструктуру гостиничного уровня с управлением River Rock. Цена за квадратный метр в проекте отражает премиальное позиционирование бренда Ramada и центральную локацию на Аллее Героев. Покупатель получает не просто стены, а готовый бизнес-инструмент с сервисной моделью, что оправдывает инвестиционные вложения на длинной дистанции.
Квартира в Ramada Residences сочетает в себе ликвидность центральной локации, преимущества брендированной резиденции и сервисное управление. Этот проект подходит для тех, кто выбирает Батуми как место для жизни, аренды и долгосрочного владения с понятной логикой эксплуатации. Рекомендуется уточнить детали планировки и условия приобретения, чтобы оценить соответствие объекта вашим инвестиционным целям.



