The project belongs to the mid-segment of Adjara’s new construction market, where the price per meter remains below the city average. This positioning solves the task for buyers who value transport accessibility without overpaying for the first line. The distance to the sea is 1850 meters, which removes the property from the tourist noise zone effectively. This position forms demand among buyers planning permanent residence rather than short-term holiday stays. The combination of affordable prices and infrastructure development pace explains the steady demand for the district.
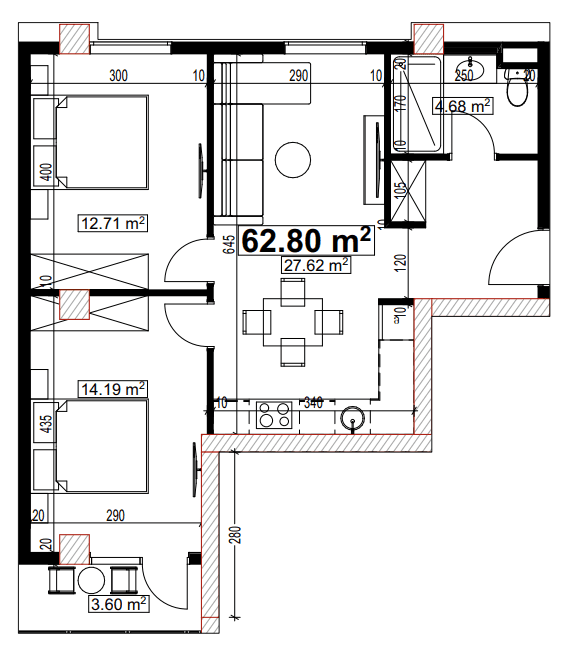
The 62.8 m² area offers versatility, allowing owners to adapt the space for guests or extended family visits. This format is popular among buyers seeking a primary residence with room for growth. The layout accommodates standard family furniture while leaving enough free space for movement. In the context of Compact House, this size category benefits from the equipped terrace and landscaped courtyard. It serves as a robust middle-ground option for those not needing a large three-bedroom unit.
The 5 floor ensures maximum privacy and an unobstructed view of the surrounding district. Higher apartments are removed from street noise and dust, creating a tranquil atmosphere. This level is closest to the rooftop recreation zones and fitness halls, encouraging an active lifestyle. The vantage point allows residents to observe the development of Batumi from a distance. It is the preferred choice for buyers seeking a sense of exclusivity and calm.
The cost of $51,810 reflects the project’s positioning below the Batumi market average. This pricing strategy makes the property accessible while maintaining quality construction standards. Buyers acquire square meters at a competitive rate compared to the central part of the city. The value is supported by the ready infrastructure and the reputation of the Elt Building developer. Such a price point ensures high liquidity for future resale or rental operations.
The property represents a solid asset in a developing district with clear growth prospects. Completion in 2026 will finalize the value formation driven by infrastructure readiness. The installment terms make ownership accessible without long-term financial strain. It suits investors looking for stable returns in the mid-segment market.


