Logistical advantages play a significant role in the appeal of Montemar Gonio, especially for foreign buyers and frequent travelers. The complex is located in close proximity to Batumi International Airport, which significantly reduces transfer times and simplifies the arrival process for international guests. At the same time, the location provides easy access to historical sites like the Gonio-Apsaros Fortress and the natural pebble beaches of the district. This combination of accessibility and seclusion makes the project a strategic choice for those who want to be close to key transport hubs without sacrificing the peace and clean air that characterize the elite suburb of Gonio.
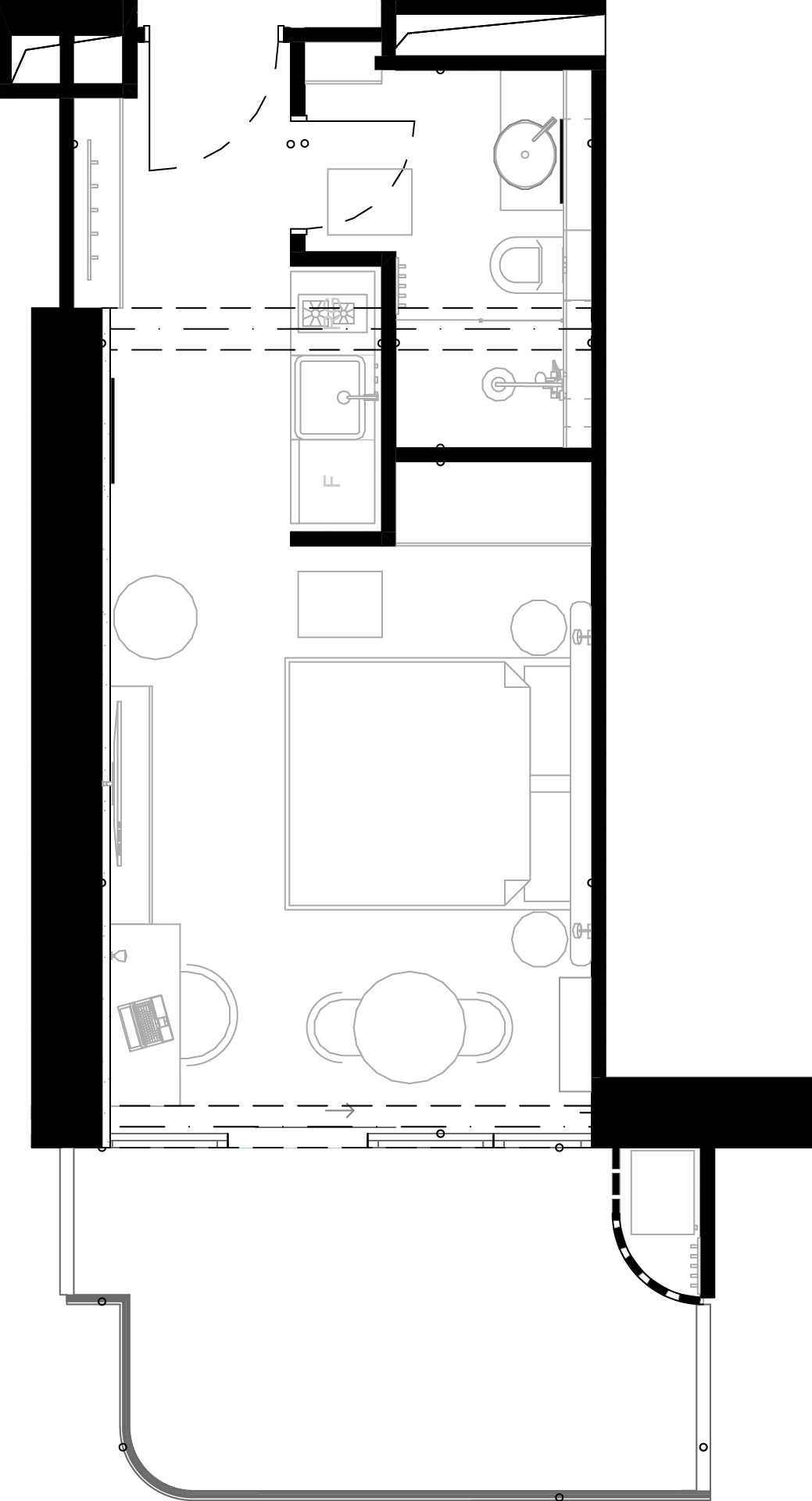
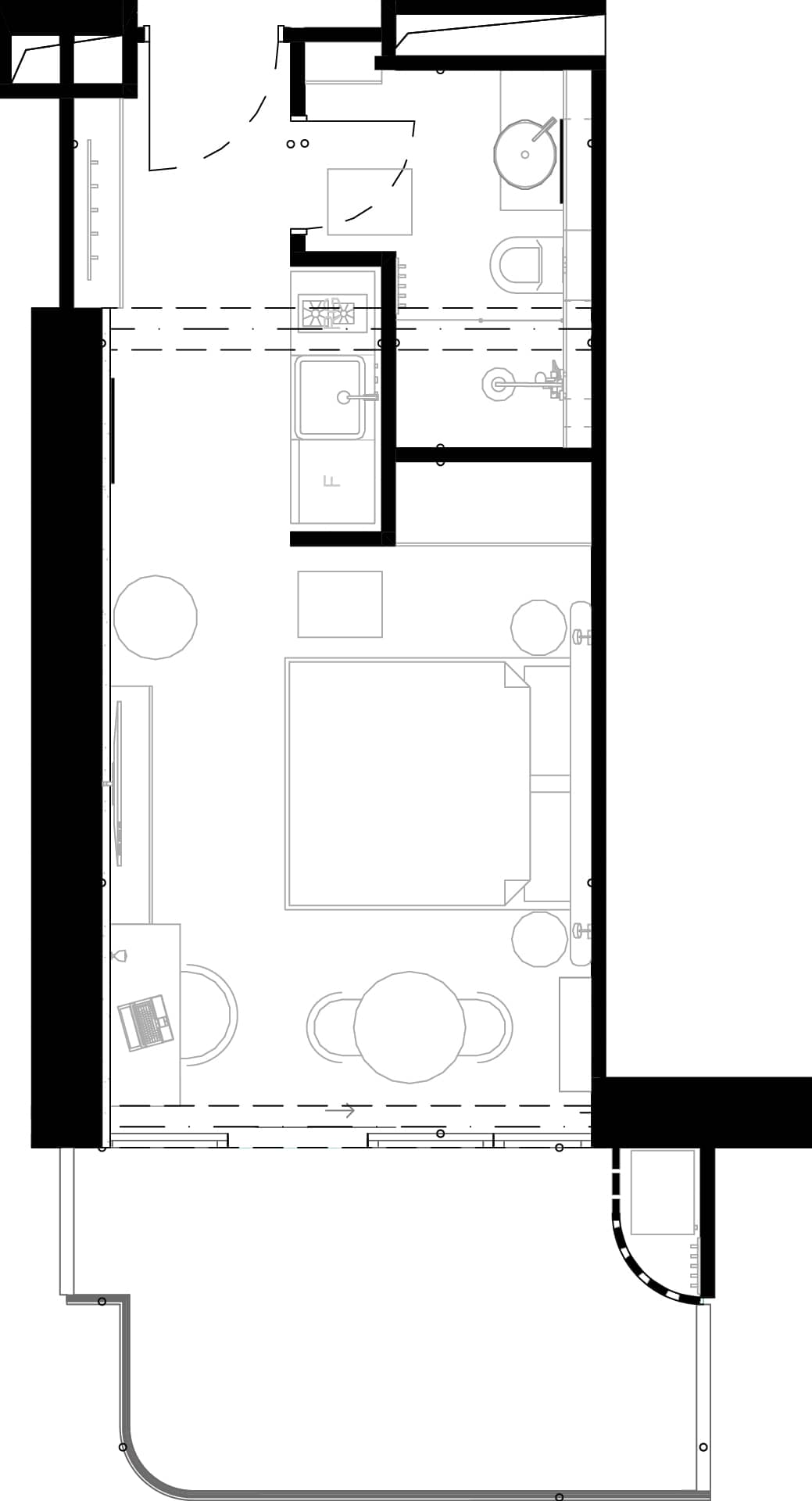
This studio with an area of 39.2 m² represents a highly efficient investment format tailored for the Gonio rental market. The layout is optimized to provide full functionality within a compact space, making it ideal for short-term tourist stays. Such units are in high demand due to their accessibility and the clean ecological status of the district.
Located on the 2 floor, this apartment represents the classic middle-tier positioning that appeals to a wide range of tenants and buyers. This level captures the essence of Montemar Gonio’s architectural concept, providing a harmonious vantage point that isn’t too high but offers a significant improvement in privacy compared to the lower floors.
At $99,372, the buyer acquires not just a residential unit of 39.2 m², but a comprehensive lifestyle product with five-star hotel infrastructure. The presence of an outdoor pool, gym, and professional management company adds significant long-term value to the property. This ensures that the apartment remains a liquid and attractive asset for both rent and resale.
Montemar Gonio represents a strategic asset in a maturing elite suburb, where limited supply drives long-term value. The proximity to the airport and the Turkish border adds a logistical advantage for international owners. You can get a full selection of available apartments and floor plans to assist in your evaluation of the project.

