הפרויקט משמש כשער כניסה אסטרטגי לשוק הנדל"ן בבתומי, תוך התמקדות בנזילות גבוהה וביקוש עונתי יציב הנתמך על ידי תשתיות תיירות. הדירות המאובזרות מראש מאפשרות התחלה מיידית של פעילות השכרה, ללא עלויות תיאום מתווכים או שיפוצים מקדימים. התשתיות הפנימיות המתקדמות, כולל מערכות הנדסה מודרניות ושטחים מסחריים בקומת הקרקע, משלימות את תמונת המגורים הנוחה והעסקית גם יחד.
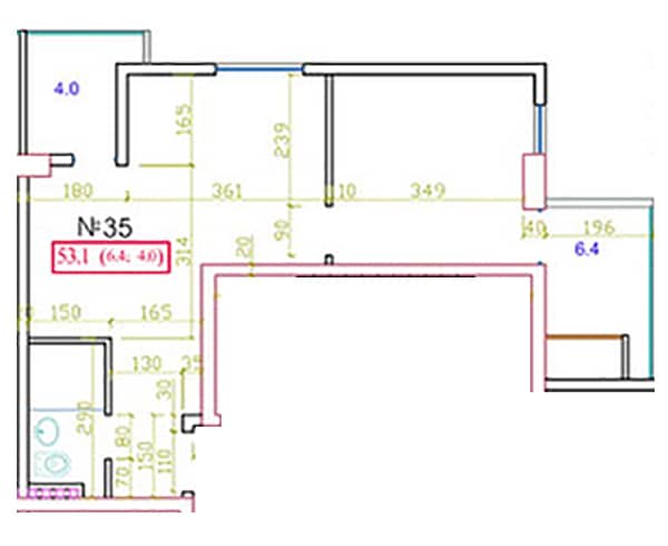
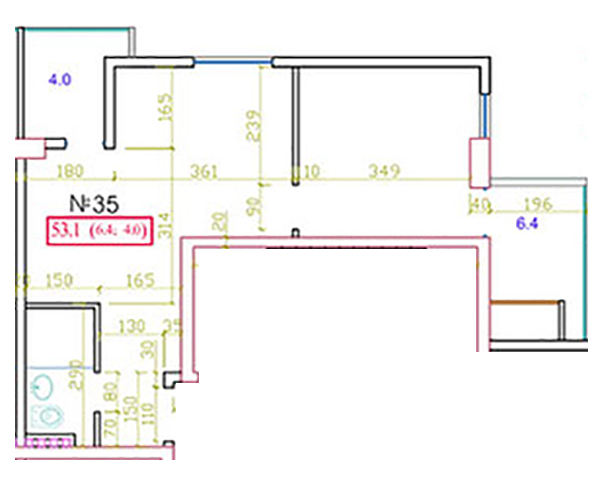
חלל מגורים ברוחב 53.1 מ"ר מספק גמישות פונקציונלית גבוהה, המאפשרת הקמת חדר עבודה ביתי או פינת ילדים נוספת מבלי לפגוע בנוחות. הודות לזיגוג הפנורמי של הבניין, החדרים נהנים מנוף פתוח והארה טבעית שגורמת למרחב להיראות רחב יותר מממדיו בפועל. שטח כזה תופס את מרכז הביקוש להשכרה ארוכת טווח, שכן הוא מציע פרטיות מבלי לוותר על זמינות שירותים עירוניים.
6 מהווה נקודת איזון אידיאלית בין נגישות קרקעית לפרטיות מוגברת, המאפשרת ליהנות מנופים פתוחים ללא תחושת ניתוק מהסביבה. רמה זו מונעת רעשי רחוב ישירים, תוך שמירה על קרבה הגיונית למעלית ולחדר המדרגות לשימוש שוטף וקל. הפורמט אטרקטיבי במיוחד למשפחות קטנות וזוגות צעירים, שכן הוא משלב ביטחון, אוורור טבעי טוב וגישה נוחה לכל חלקי הקומפלקס.
עלות הנכס בסך $50,445 משקפת באופן ישיר את המיקום האסטרטגי ליד הים ואת סטנדרט הגימור המלא הכלול בעסקה. התמחור מתייחס לנכס רדי ללא צורך בהשקעות נוספות, מה שמאפשר למשקיעים להתחיל לפעול מידית ולכסות הוצאות תחזוקה. שווי זה הולם את הביקוש הגבוה למגורים איכותיים במחינג'אורי, תוך הצעת יחס תועלת מול עלות אטרקטיבי במיוחד.
התכנון המדויק של החדרים, יחד עם הנופים הפנורמיים והגישה המיידית לחוף הים, הופכים את הבחירה למעשית ובת קיימא. המסגרת התמחורית הנוכחית משקפת ביקוש אזורי אמיתי ותשתית מוכנה לקליטת דיירים ללא עיכובים טכניים. מידע טכני מפורט על תוכניות הבנייה והתאמות פנימיות אפשרי דרך מערך השירות של המתחם, לצורך קבלת החלטה מושכלת.



