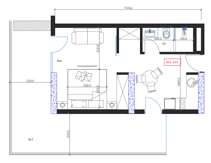
Квартира площадью 60.6 м² предлагает баланс между функциональностью и стоимостью проживания у моря. Такой метраж удобен для семейного отдыха или длительного пребывания в курортной зоне. Расположение в районе Аэропорта упрощает логистику, а 75 метров до пляжа обеспечивают доступ к инфраструктуре. Планировка позволяет выделить отдельные зоны для сна и отдыха, повышая комфорт резидентов.
Метраж 60.6 м² оптимален для тех, кто ценит простор в сочетании с инвестиционной ликвидностью проекта. Близость к морю в 75 метров и развитая среда района Аэропорта делают квартиру привлекательной для аренды. Средний размер площади позволяет разместить всё необходимое оборудование для комфортной жизни. Подобные объекты стабильно пользуются спросом у долгосрочных арендаторов и временных резидентов Батуми.
Квартира на 11 этаже предлагает оптимальный баланс между высотой обзора и акустическим комфортом проживания. Этот уровень обеспечивает достаточную удалённость от уличного шума при сохранении связи с инфраструктурой двора. В Marina Club средние этажи позволяют наслаждаться видами на район Аэропорта и окрестности. Подобное расположение универсально подходит как для постоянного проживания, так и для аренды туристами.
Стоимость квартиры $115 140 отражает баланс между локацией у моря в 75 метрах и классом комфорт+. Цена фиксируется на этапе строительства, что позволяет инвестору обеспечить рост актива к сдаче в {{built-date}} году. Рассрочка до 36 месяцев без удорожания снижает финансовую нагрузку при покупке. Соотношение параметров квартиры и инфраструктуры района Аэропорта оправдывает вложения в ликвидный объект.
Проект Marina Club обеспечивает комфортное проживание у моря благодаря продуманной инфраструктуре и видовым характеристикам. Расположение в районе Аэропорта и близость к пляжу в 75 метров создают уникальную среду. Класс комфорт+ и три корпуса формируют камерную атмосферу с высоким уровнем сервиса. Получить детальную информацию о доступных апартаментах можно через консультацию с представителем комплекса.



