يعتبر Montemar Gonio مجمعاً سكنياً حديثاً من فئة رجال الأعمال، صُمم ليكون منتجاً استثمارياً متعدد الاستخدامات يلبي تطلعات المستثمرين والمشترين على حد سواء. يعتمد المفهوم المعماري للمشروع على مبدأ دمج المبنى متوسط الارتفاع مع التضاريس المحيطة، مع التركيز على بيئة العمل واستخدام الزجاج البانورامي لتوفير أقصى قدر من الإضاءة الطبيعية. بفضل البنية التحتية الداخلية المتطورة، يوفر المشروع استقلالية كاملة للمقيمين، حيث يتم استكمال الوظيفة السكنية بخدمات فندقية متكاملة تضمن سيولة العقار واستدامة جاذبيته في سوق باتومي التنافسي لسنوات طويلة.
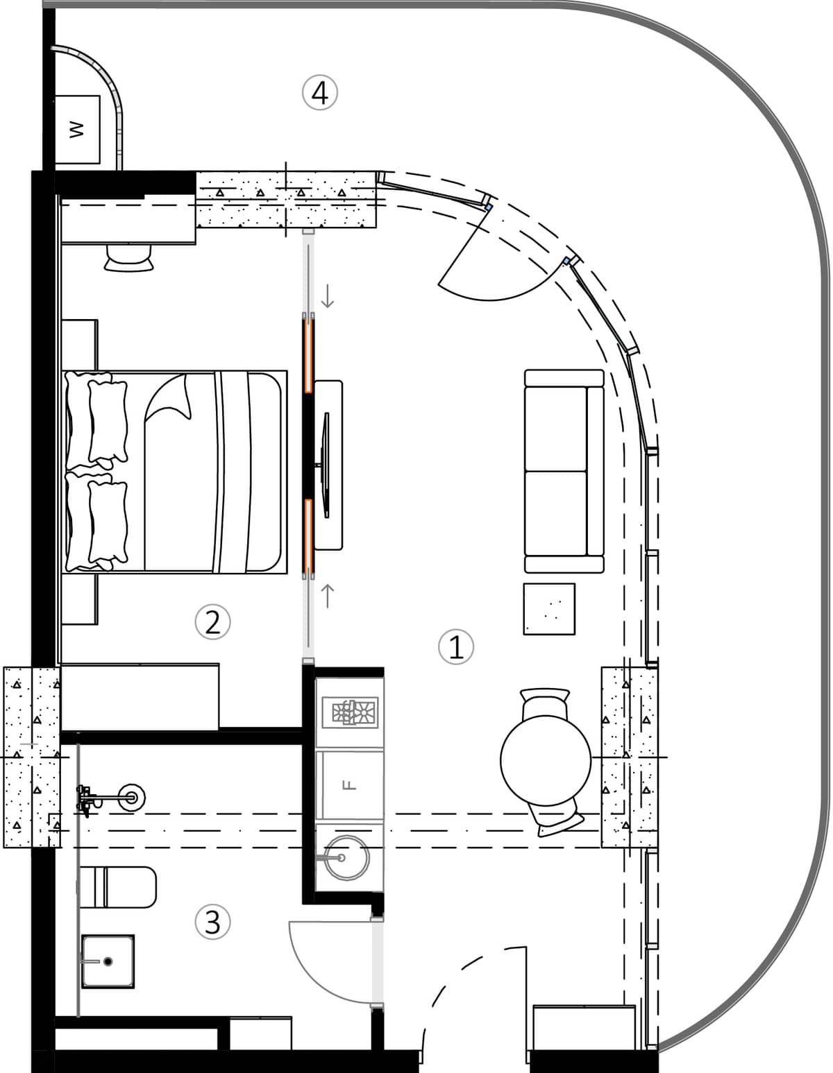
تسمح مساحة 59.7 م² في مجمع Montemar بتنفيذ حلول تصميمية عصرية تلبي متطلبات السكن من فئة رجال الأعمال. يوفر هذا الحجم المتوسط الخصوصية اللازمة والراحة دون أعباء الصيانة الكبيرة، وهو ما يبحث عنه الجمهور الذي يقدر الجودة والرفاهية في منطقة هادئة وراقية مثل ضاحية غونيو النخبوية.
عند هذا المستوى في الطابق 15، تبرز جماليات التصميم المعماري لمجمع Montemar، حيث تنفتح المناظر الطبيعية لغونيو أمام المقيمين بشكل جذاب. يوفر هذا الارتفاع عزلة كافية عن حركة الطوابق السفلية مع الحفاظ على شعور بالراحة النفسية، مما يجعله خياراً مفضلاً للإقامات الطويلة والباحثين عن الاستمتاع بالمناظر البانورامية الخلابة.
يمثل سعر الشراء $229,845 نقطة انطلاق قوية لتحقيق أرباح رأسمالية بحلول تاريخ التسليم في {{built-date}}. في ظل التطور التدريجي لمنطقة غونيو وظهور مشاريع فندقية كبرى بجوار المجمع، من المتوقع أن تشهد الوحدات ذات الإطلالات البانورامية والخدمات المتكاملة زيادة مطردة في الأسعار، مما يجعل هذا الخيار آمناً ومربحاً للمدى الطويل.
في الختام، تجمع هذه الشقة في Montemar Gonio بين الموقع الفريد في أنظف مناطق باتومي والبنية التحتية المتكاملة، مما يجعلها خياراً متوازناً للسكن أو الاستثمار. يمكنكم التواصل معنا للحصول على معلومات إضافية حول شروط الدفع والمخططات المتاحة لهذا المشروع الواعد.


