Жилой комплекс Montemar Gonio разработан по принципу полной автономности, обеспечивая владельцев квартир всем необходимым внутри территории. Наличие собственного бассейна с зоной отдыха, современного оздоровительного центра и фитнес-зала превращает проживание в бесконечный отпуск. Коммерческие площади на первых этажах отведены под кафе и магазины, что дополняет внутренний сервис. Квартира в таком объекте избавляет от необходимости поиска внешних услуг, так как профессиональная управляющая компания берет на себя все задачи по обслуживанию и эксплуатации здания. Это создает условия для комфортного сезонного проживания и повышает общую ликвидность недвижимости на рынке.
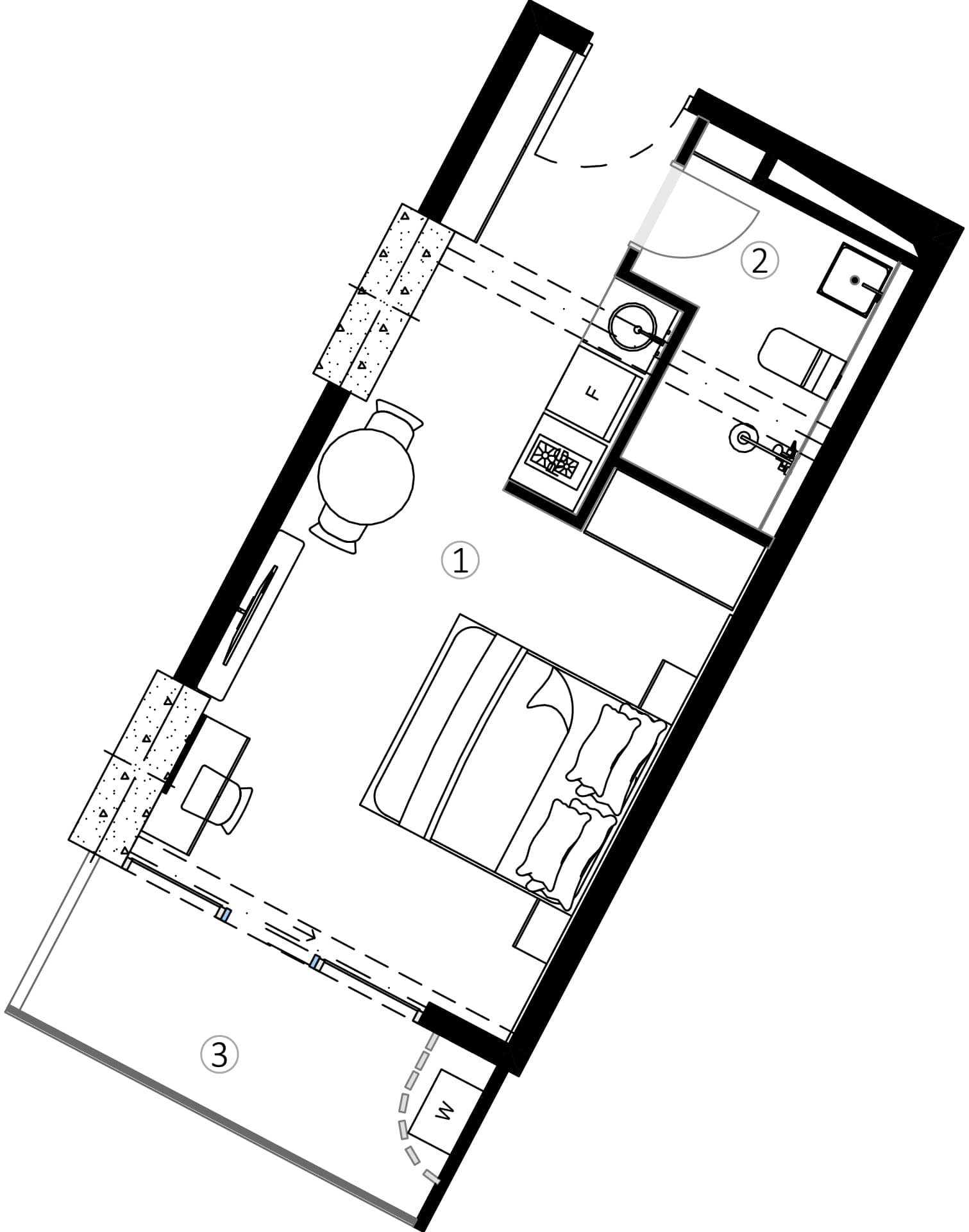
Метраж 35 м² является наиболее ликвидным решением для входа в премиальный проект Montemar Gonio. Небольшая площадь минимизирует общие затраты на покупку и последующее содержание недвижимости, при этом сохраняя доступ ко всей пятизвездочной инфраструктуре комплекса. Это оптимальный выбор для тех, кто рассматривает объект как актив для сохранения и приумножения капитала.
Средний уровень, на котором расположен 16 этаж, предлагает золотую середину между видовыми характеристиками и психологическим комфортом. Отсюда открывается отличная перспектива на окрестности Гонио, сохраняя при этом связь с ритмом самого жилого комплекса. Это универсальный выбор для тех, кто ищет баланс высоты, приватности и естественного освещения в своей квартире.
Стоимость квартиры полностью обоснована наличием в Montemar Gonio инфраструктуры пятизвездочного отеля. Владелец получает не просто квадратные метры, а доступ к SPA-центру, бассейну и фитнес-залу мирового уровня. Такое наполнение проекта гарантирует высокую арендную ставку, что делает цену оправданной инвестицией в ликвидный актив на экологически чистом побережье.
Данный объект представляет собой надежный инвестиционный инструмент с понятным горизонтом окупаемости за счет профессионального управления и уникальной локации. Дефицит качественных площадей в районе Гонио обеспечивает стабильный рост капитализации и высокий интерес со стороны арендаторов. Рассмотреть все доступные варианты и сравнить характеристики апартаментов можно в рамках детального ознакомления с проектом.

