Владение квартирой в Montemar Gonio открывает доступ к формату жизни в экологически чистом пригороде с инфраструктурой уровня люкс. Расположение в Гонио гарантирует близость к лучшим галечным пляжам региона, которые не подвержены сильному антропогенному воздействию. Это идеальное место для тех, кто ищет дистанцию от зон массового туризма, но не готов отказываться от городских удобств. Внутреннее наполнение комплекса, включающее SPA-центр, фитнес-зал и открытый бассейн, формирует автономную среду для полноценного отдыха. Проект объединяет в себе преимущества загородной резиденции и современной городской квартиры с профессиональным обслуживанием и круглосуточной охраной.
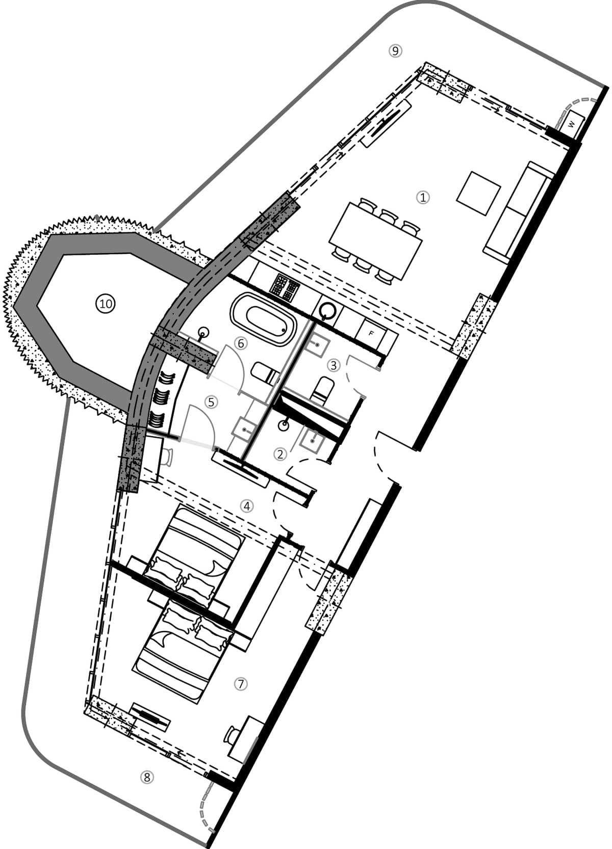
Владение объектом площадью 134.5 м² подчеркивает высокий статус собственника и его стремление к максимальному качеству жизни. Большая площадь в сочетании с панорамными видами на побережье создает уникальное ощущение свободы. Подобные лоты в Гонио встречаются редко, что обеспечивает им высокую ценность на рынке элитной недвижимости и отличные перспективы для капитализации.
Средний уровень, на котором расположен 16 этаж, предлагает золотую середину между видовыми характеристиками и психологическим комфортом. Отсюда открывается отличная перспектива на окрестности Гонио, сохраняя при этом связь с ритмом самого жилого комплекса. Это универсальный выбор для тех, кто ищет баланс высоты, приватности и естественного освещения в своей квартире.
Указанная цена за квартиру площадью 134.5 м² является конкурентным предложением для инвесторов, нацеленных на валютный доход. Учитывая профессиональное управление объектом, владелец может рассчитывать на стабильный возврат средств за счет краткосрочной аренды. Высокий спрос на жилье в Гонио со стороны состоятельных туристов делает данный порог входа в проект финансово привлекательным.
Расположение комплекса в самой тихой и чистой зоне побережья Аджарии выделяет его среди других предложений на рынке Батуми. Формат апарт-отеля минимизирует участие владельца в управлении имуществом, обеспечивая при этом полноценный пятизвездочный сервис. Для получения актуальной шахматки с ценами и подбора планировки под ваши задачи предлагаем воспользоваться информационной поддержкой.

