Montemar Gonio представляет собой современный проект бизнес-класса, разработанный по концепции mixed-use для максимально комфортного проживания и отдыха. Архитектура здания гармонично вписана в ландшафт, а использование стандартов монолитного строительства гарантирует долговечность и высокую энергоэффективность объекта. В отличие от плотной застройки центральных районов Батуми, данный комплекс выделяется низкой плотностью населения в округе и акцентом на панорамные виды. Квартира в таком проекте — это выбор в пользу эстетики и функциональности, где жилая среда дополнена полным спектром гостиничных сервисов и внутренней инфраструктурой пятизвездочного уровня.
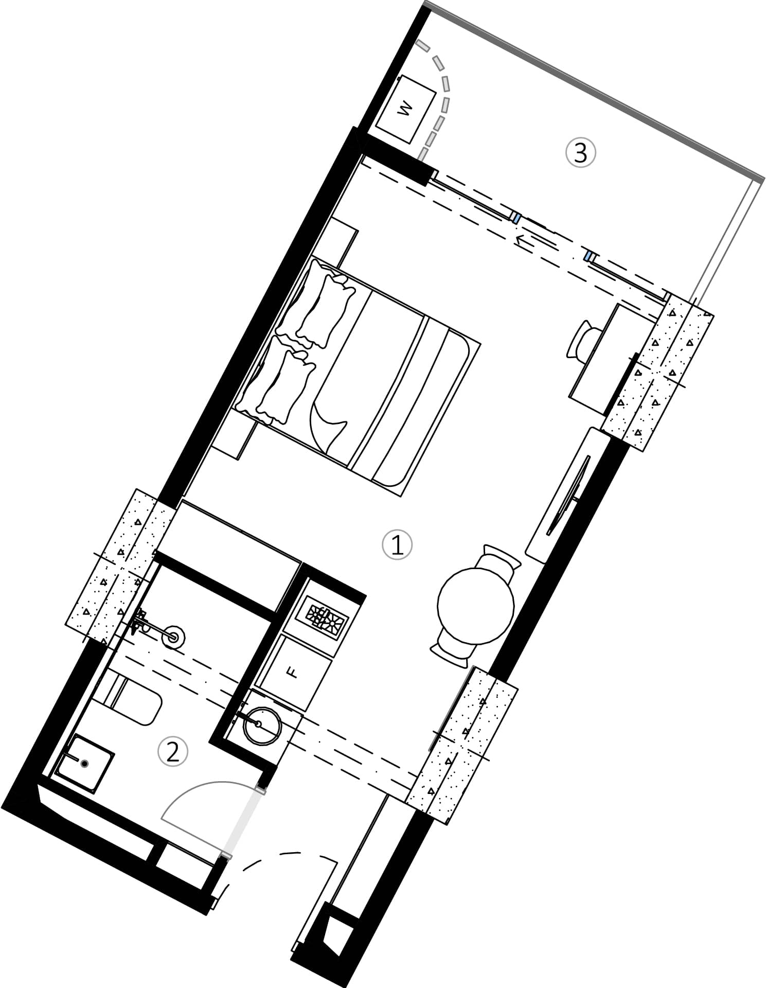
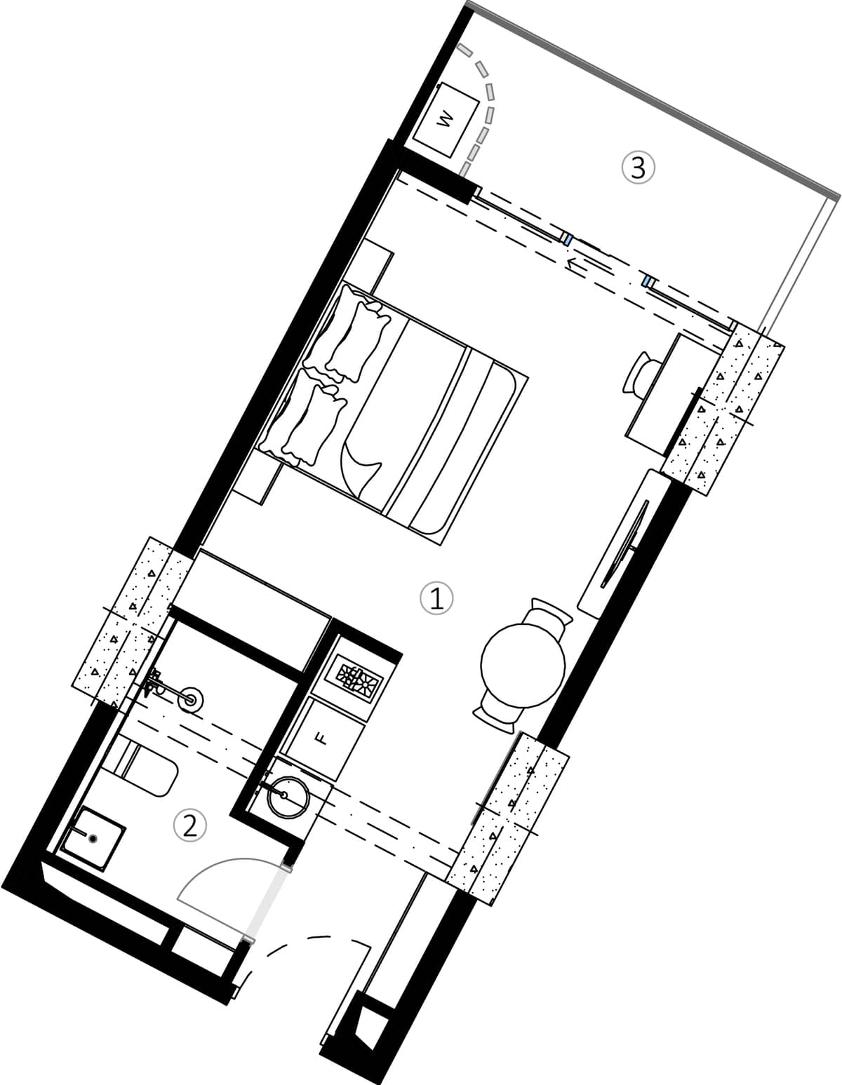
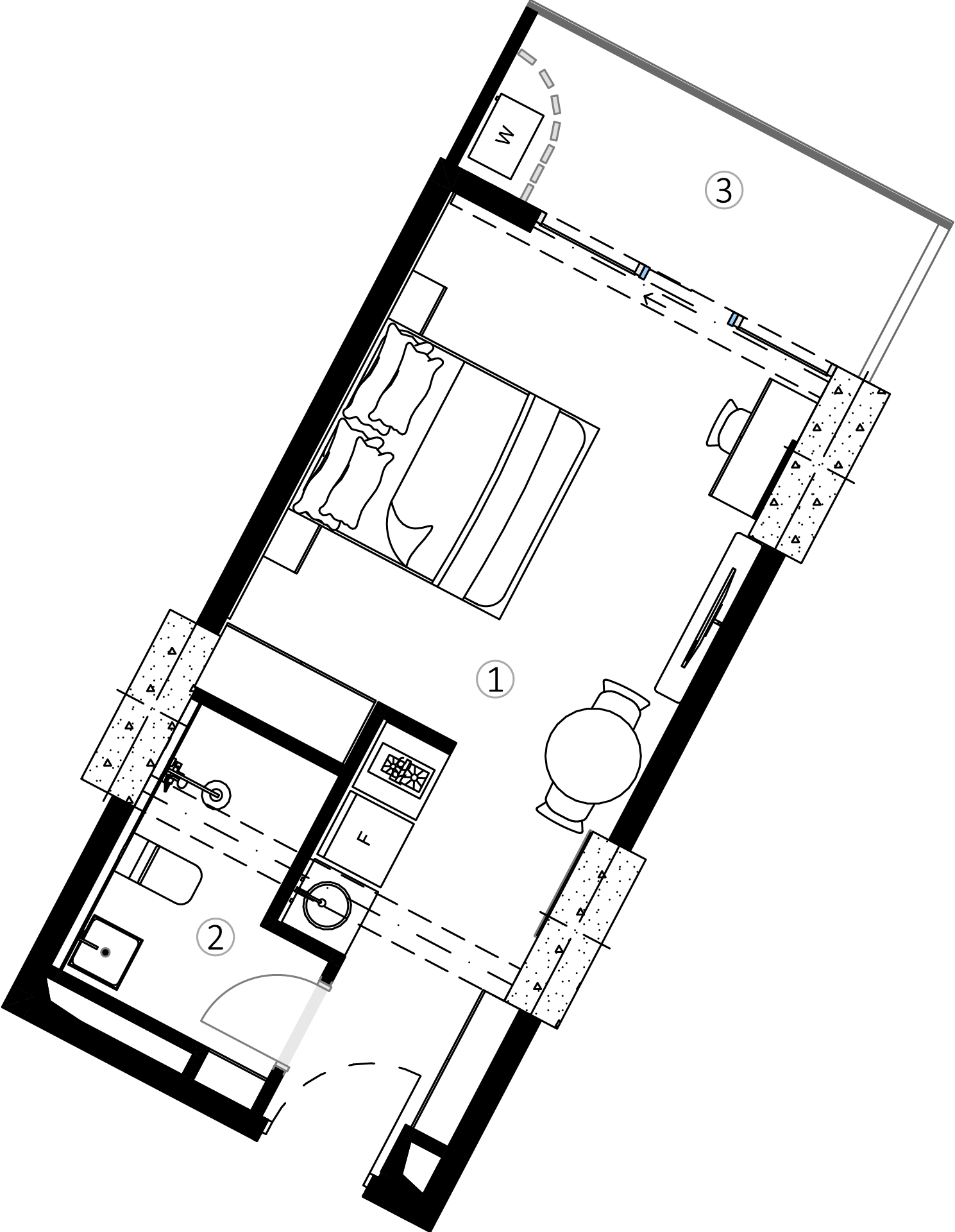
Жилое пространство площадью 34.4 м² отлично подходит для индивидуального сезонного отдыха или проживания пары. Благодаря панорамному остеклению и грамотной планировке, квартира не ощущается тесной, а функциональность помещений соответствует стандартам бизнес-класса. Подобные лоты в Гонио быстро находят арендаторов благодаря чистоте локации и высокому качеству сервиса в самом здании.
Расположение на 16 этаже позволяет в полной мере оценить современную архитектуру Montemar Gonio и окружающий ландшафт. Уровень этажа находится выше большинства соседних строений, что гарантирует стабильный приток света и ощущение свободного пространства. Квартиры на средних этажах традиционно считаются наиболее ликвидными на рынке недвижимости Батуми благодаря своей универсальности.
Цена в размере обусловлена в том числе гарантированными видовыми характеристиками и удачным расположением квартиры на 16 этаже. В условиях плотной застройки побережья панорамный вид на море и горы становится самостоятельным активом, который только дорожает со временем. Это выгодное соотношение цены и качественных параметров лота, обеспечивающее ему быструю ликвидность.
Квартира в Montemar Gonio является оптимальным решением для тех, кто стремится совместить комфорт современной резиденции с преимуществами проживания в экологически чистом пригороде. Выбор этого объекта в Гонио гарантирует доступ к лучшим пляжам региона и инфраструктуре премиального уровня. Для уточнения деталей и актуального наличия планировок можно получить информационную консультацию на нашем сайте.

