Представленный лот располагается в премиальном комплексе Palm Residence на первой линии Нового бульвара Батуми. Проект гармонично объединяет приватность жилого пространства и полноценный уровень отельного сервиса. Это позволяет резидентам пользоваться развитой внутренней инфраструктурой без необходимости покидать территорию. Восемнадцатиэтажное здание спроектировано по строгим европейским стандартам с применением энергоэффективных технологий и монолитного каркаса. Наличие профессиональной управляющей компании с функцией консьерж-сервиса полностью закрывает вопросы бытового обслуживания, формируя комфортную среду для проживания.
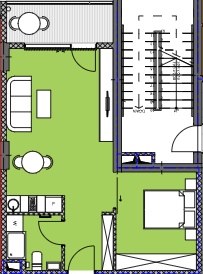
Квартира европейского формата, занимающая 46.81 квадратных метров, позволяет организовать полноценные обособленные зоны для отдыха и повседневных дел. Такая площадь гармонично закрывает потребности пар или гостей, приезжающих на долгий срок и нуждающихся в спокойной тишине района Аэропорт, а также в качественной звукоизоляции монолитного премиального здания.
Расположение объекта на 6 этаже обеспечивает максимально быстрый и удобный доступ ко всей внутренней отельной инфраструктуре комплекса. Жильцам нижнего уровня будет особенно комфортно пользоваться коммерческими помещениями, кафе-баром и двором с бассейном, полностью минуя длительное ожидание лифта в активный летний туристический сезон.
Сумма в $46 810 органично формируется из уникальных архитектурных решений комплекса Palm Residence и его престижной локации в Батуми. Подобная финансовая оценка квартиры напрямую связана с наличием качественной теплоизоляции, высоких потолков и шаговой доступности к морю, что делает объект ликвидным предложением среди новостроек прибрежного кластера.
Сочетание тишины престижного района Аэропорт, современной туристической инфраструктуры и полной автономности апарт-отеля делает этот вариант логичным выбором для жизни у побережья. Чтобы получить исчерпывающую информацию о проекте и детально сравнить планировки, советуем обратиться за профессиональной консультацией.


