Ключевым преимуществом проекта является передача управления комплексом компании River Rock, что усиливает сервисную составляющую и отличает его от типовых домов. Сервисная модель позволяет реализовать сценарий пассивного дохода, где арендная логика поддерживается брендом и оператором. Это снижает нагрузку на собственника, которому не нужно самостоятельно искать управляющую компанию или организовывать сервис для гостей, так как все процессы стандартизированы.
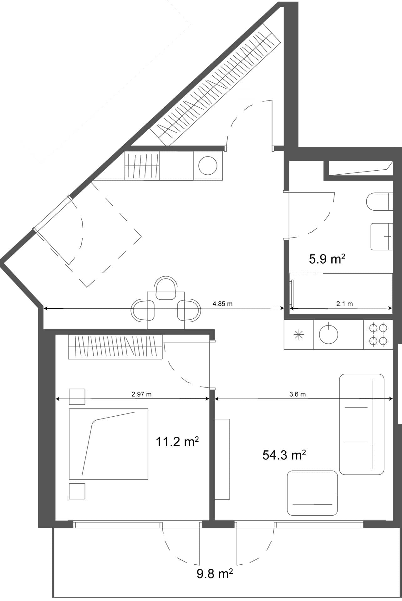
Площадь около 64.1 м² позволяет организовать комфортное проживание с выделенной спальней и гостиной, что повышает ценность объекта на среднесрочном рынке. Такой метраж востребован у digital nomads, которым требуется пространство для работы и жизни в условиях сервисного управления. Функциональная планировка в стандартах Ramada обеспечивает эффективное использование каждого метра без ощущения тесноты в городской среде.
Расположение квартиры на 37 этаже открывает панорамные виды на Батуми, море и горные хребты, что существенно повышает ценность объекта. Верхние уровни в Ramada Residences обеспечивают максимальную приватность и ощущение пространства, отделяя жильцов от городской суеты. Это премиальное позиционирование, которое позволяет устанавливать более высокую ставку аренды и привлекает требовательных гостей.
Стоимость квартиры $229 719 обусловлена параметрами объекта и включением в инфраструктуру гостиничного уровня с управлением River Rock. Цена за квадратный метр в проекте отражает премиальное позиционирование бренда Ramada и центральную локацию на Аллее Героев. Покупатель получает не просто стены, а готовый бизнес-инструмент с сервисной моделью, что оправдывает инвестиционные вложения на длинной дистанции.
Объект предлагает формат сервисной недвижимости, где арендная логика поддерживается брендом, оператором River Rock и сильным районом. Наличие кухонь и гостиничной инфраструктуры внутри комплекса создает уникальное предложение на рынке Батуми. Для получения полной информации о доступных лотах и стадиях строительства целесообразно запросить актуальную экспликацию у менеджеров проекта.


