Жизнь в комплексе предполагает доступ к городским удобствам Аллеи Героев и одновременно приватность закрытого сообщества. Район окружен современными жилыми комплексами, отелями и точками притяжения, такими как Batumi Mall и танцующие фонтаны. Для владельца это означает возможность наслаждаться курортным образом жизни с сервисным обслуживанием, не жертвуя доступом к деловой и развлекательной инфраструктуре курортного города.
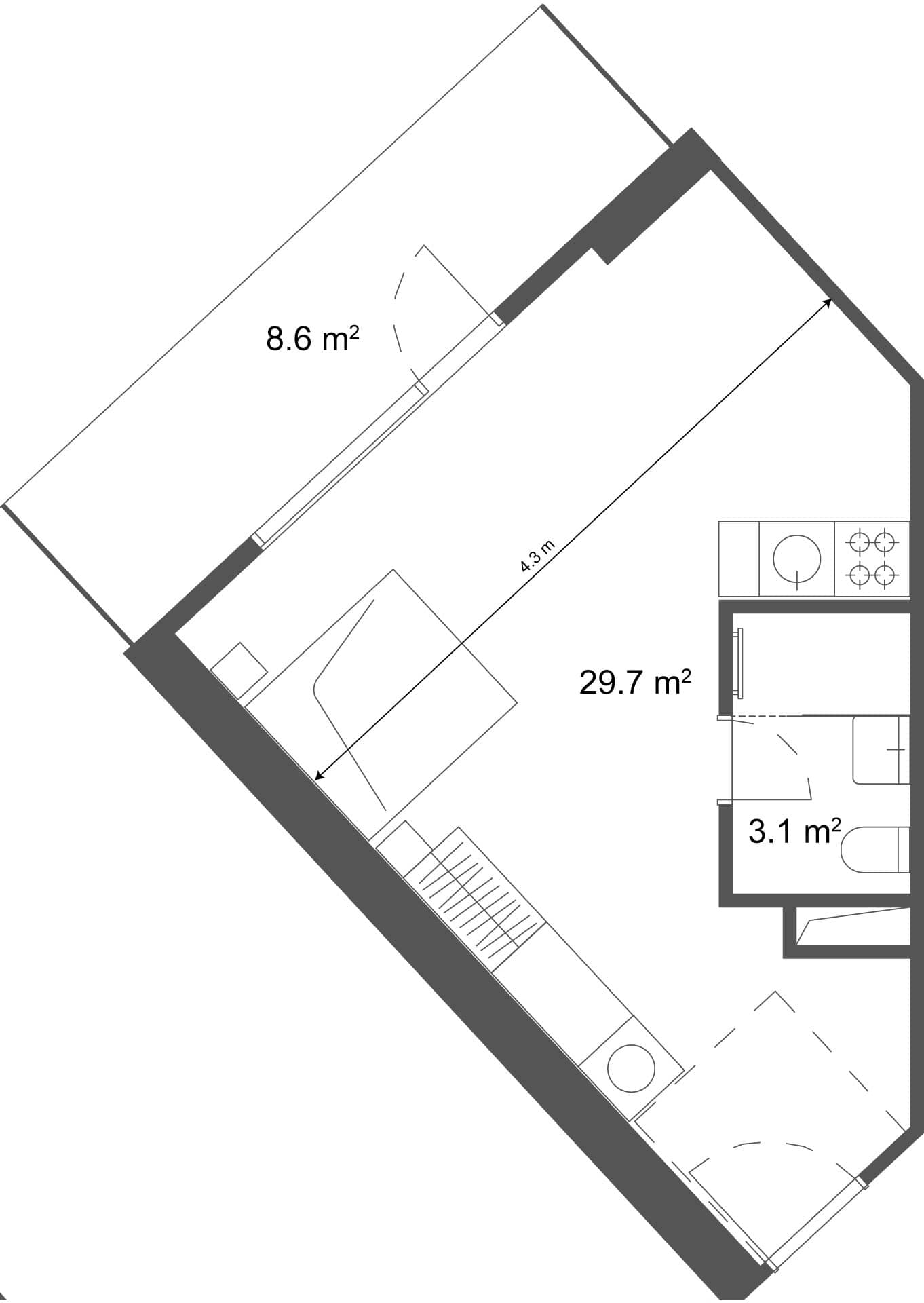
Компактное пространство площадью 38.3 м² спроектировано с учетом эргономики, включая полноценную кухонную зону, что отличает его от обычного гостиничного номера. Такой формат жилья подходит для одного человека или пары, позволяя комфортно размещаться в центральной локации Батуми. Высокая плотность застройки района делает небольшие квартиры ликвидным активом, так как спрос на бюджетное проживание у моря всегда стабилен.
Уровень этажа 38 подразумевает эксклюзивность проживания, близость к sky bar и лучшим видовым точкам комплекса. Высокие этажи в проекте на Аллее Героев пользуются особым спросом у туристов, готовых платить за виды и тишину в центре города. Для собственника это возможность выделиться на рынке аренды, предлагая продукт с уникальными визуальными характеристиками и статусом.
Цена $170 525 соответствует рыночной логике инвестиционно-премиального сегмента, где важны будущая ликвидность и сила бренда. В сравнении со стандартными новостройками Батуми, стоимость здесь включает надстройку в виде профессионального управления и развитой внутренней инфраструктуры. Это делает объект понятным продуктом для покупателя из-за рубежа, ищущего надежный актив в курортном городе с открытым рынком.
Квартира в Ramada Residences сочетает в себе ликвидность центральной локации, преимущества брендированной резиденции и сервисное управление. Этот проект подходит для тех, кто выбирает Батуми как место для жизни, аренды и долгосрочного владения с понятной логикой эксплуатации. Рекомендуется уточнить детали планировки и условия приобретения, чтобы оценить соответствие объекта вашим инвестиционным целям.


