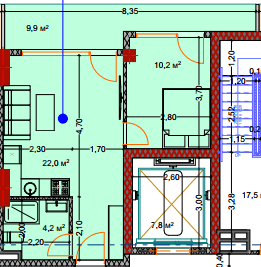
Параметры квартиры
О квартире
SUMMER 365 — это выдающийся жилой проект в Батуми, предлагающий современный и комфортный образ жизни. Расположенный по адресу улица Коте Абхазии 43, комплекс находится всего в 600 метрах от моря, обеспечивая легкий доступ к пляжу. Проект выполнен с уникальной архитектурной концепцией, напоминающей стопку книг, что подчеркивает интеллектуальный и продуманный дизайн. Внешний вид включает зеленые фасады и динамичную игру света и тени, что делает здание визуально привлекательным в различных погодных условиях.
В комплексе предусмотрен широкий спектр удобств, направленных на повышение качества жизни жителей. Среди них четыре подогреваемых бассейна, фитнес-центр, студии йоги и танцев, залы гимнастики и различные зоны для тренировок по всему комплексу. Безопасность является приоритетом, обеспечиваемым круглосуточным видеонаблюдением, высокоскоростными лифтами OTIS и комплексными мерами безопасности.
Для семей с детьми в SUMMER 365 предусмотрен детский сад, что делает удобным отправку и забор детей. В комплексе также имеется разнообразная инфраструктура, включая рестораны, бар, пекарню, фермерский рынок, супермаркет, кинотеатр, кальянную и салон красоты. На улице расположены детские площадки, фонтаны, зона для костра, пешеходный мост, уличный кинотеатр и частный сад с более чем 40 видами растений.
Квартиры в SUMMER 365 представлены в различных размерах, включая студии, а также одно-, двух- и трехкомнатные апартаменты. Все квартиры продаются с базовой отделкой, также доступны варианты дизайнерского ремонта. Цены начинаются примерно от $44,847. Комплекс планируется завершить к концу 2026 года, и есть возможность покупки квартир с использованием криптовалюты.
В целом, SUMMER 365 позиционируется как высококачественный жилой комплекс в Батуми, сочетая удобство, безопасность и широкий спектр удобств для современных потребностей.
О жилом комплексе
- 开间:
- 从 $ 36 247
- 一居室:
- 从 $ 33 607
- 两居室:
- 从 $ 51 972
- 三居室:
- 从 $ 62 467
- 四居室:
- 从 $ 100 216
- 每平方米价格:
- 从 $ 936 m²
- 公寓:
- 从 3.5 到 147.4 m²
- 距海距离:
- 800 m











