Параметры квартиры
О квартире
Park Tower в Батуми предлагает аналогичный уровень роскоши и комфорта, но с дополнительным преимуществом в виде расположения рядом с Черным морем. Здание может похвастаться современной архитектурой и высококачественной отделкой, что делает его привлекательным местом для жизни или инвестиций. Жильцы могут наслаждаться прекрасными видами на море, а также доступом к ряду удобств, включая фитнес-центр, бассейн и услуги консьержа. Близость к пляжам и туристическим достопримечательностям Батуми повышает его привлекательность.
О жилом комплексе
- Studios:
- from $ 55 699
- 1-room apartments:
- from $ 70 606
- 2-room apartments:
- from $ 116 565
- Cost per m²:
- from $ 1 000 m²
- Apartments:
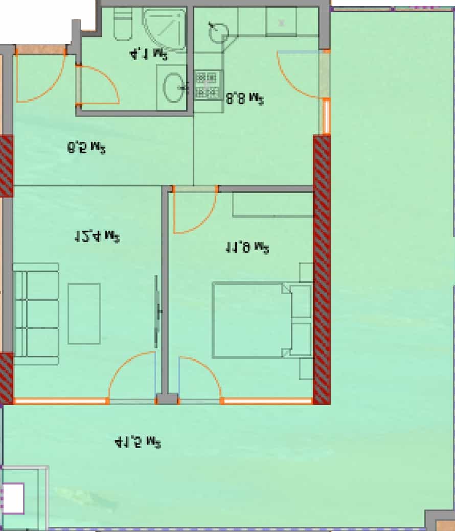
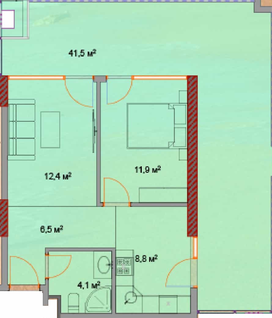
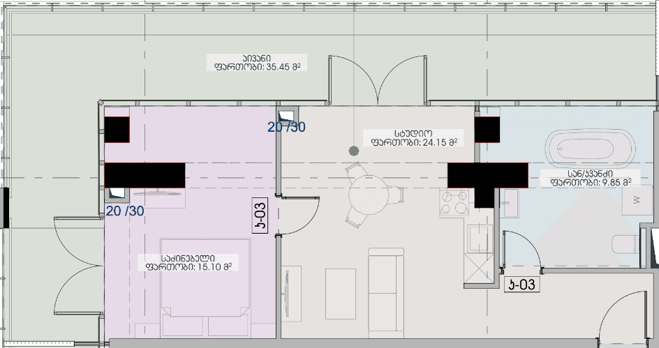
- from 35.95 to 82.67 m²
- Name in Russian:
- Парк Туэр
- Distance to the sea:
- 394 m
$ 97 340
$ 1 115 per m²
Horizon Grand Residence
Developer: Horizons Group
delivery 2027y.
$ 109 562
$ 1 255 per m²
Horizon Grand Residence
Developer: Horizons Group
delivery 2027y.
$ 122 657
$ 1 405 per m²
Horizon Grand Residence
Developer: Horizons Group
delivery 2027y.











