Жизнь в комплексе предполагает доступ к городским удобствам Аллеи Героев и одновременно приватность закрытого сообщества. Район окружен современными жилыми комплексами, отелями и точками притяжения, такими как Batumi Mall и танцующие фонтаны. Для владельца это означает возможность наслаждаться курортным образом жизни с сервисным обслуживанием, не жертвуя доступом к деловой и развлекательной инфраструктуре курортного города.
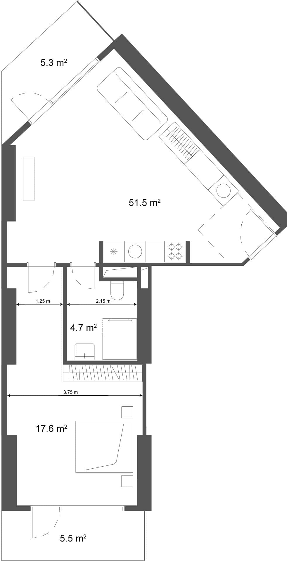
Квартира площадью 62.3 м² представляет собой баланс между компактностью и простором, предлагая отдельные функциональные зоны для сна и отдыха. Средний метраж наиболее универсален для сдачи в аренду экспатам и семьям, которые проводят в Батуми несколько месяцев. В комплексе такие лоты выигрывают за счет наличия кухни и возможности самостоятельного приготовления пищи, расширяя целевую аудиторию арендаторов.
Квартира на 39 этаже гарантирует максимальную приватность и отсутствие посторонних шумов с улицы, создавая атмосферу уединенной резиденции. Верхние уровни часто выбирают для длительного проживания те, кто ценит тишину и качественные видовые характеристики из окон. В контексте брендированного проекта высота усиливает восприятие класса недвижимости и подтверждает премиальный статус объекта.
Стоимость $232 795 следует рассматривать в контексте долгосрочного владения, где важны качество управления и сила локации после ввода объекта. На стадии строительства цена входа позволяет зафиксировать стоимость до роста, связанного с развитием Аллеи Героев и завершением проекта в 2029 году. Рациональный подход к цене учитывает не только текущие метры, но и будущий потенциал доходности актива.
Квартира в Ramada Residences сочетает в себе ликвидность центральной локации, преимущества брендированной резиденции и сервисное управление. Этот проект подходит для тех, кто выбирает Батуми как место для жизни, аренды и долгосрочного владения с понятной логикой эксплуатации. Рекомендуется уточнить детали планировки и условия приобретения, чтобы оценить соответствие объекта вашим инвестиционным целям.


